Не нашли нужный товар? Позвоните или напишите нам и мы обязательно подберем для Вас решение.
Договор заключается в момент оплаты Покупателем товара ТОЛЬКО в ОФЛАЙН-МАГАЗИНЕ. Делая предварительный заказ, Покупатель заверяет, что ознакомился и согласен с Политикой компании, она ему ясна и понятна.Топка Мета-Бел Fenix-900
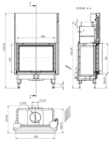
Конструкция и особенности печи
Каминные топки серии «Fenix» – соответствуют европейским нормам по качеству и технологии. Корпуса топок изготовлены из стального листа толщиной 3 и 5 мм. В конструкции моделей учтены современные требования к закрытым топкам, соблюдение которых обеспечивает полное и эффективное сгорание топлива и удобство эксплуатации. Это: Система «вторичного дожига», Система «чистое стекло», Систем подачи воздуха «из вне».
Современная и функциональная топка с плавным и бесшумным подъёмным механизмом дверцы. Дно топки выполнено в виде чаши с бортом и выложено шамотным кирпичом. Задняя и боковые стенки топочной камеры футерованы 3D вермикулитом. Шамот и вермикулит – это природные, экологически чистые материалы, при их нагревании не выделяется запах и токсичные вещества. Вермикулит обладают высокой отражающей способностью, что существенно повышает полноту сгорания топлива.
Дверка у топки FENIX 900 может быть исполнена в двух вариантах:
1. С наружным панорамным стеклом с шелкографией по периметру.
2. Большое стекло обрамлено металлической рамкой.
FENIX 900 способна отопить 110 м2.
Рисунок вермикулита в топочной камере может отличаться от представленного на фото либо вермикулит производства SKAMOL может быть без рисунка.
Дымоход, огнезащита и комплектующие
Для топки необходим дымоход диаметром 250мм. Его можно подобрать в разделе дымоходы.
Для любой топки необходимо предусмотреть облицовку. Рекомендуем использовать силикат кальция.
Также могут понадобиться важные мелочи.
Характеристики
|
Производитель
|
Мета-Бел (Беларусь) |
|
Высота, мм
|
1725 |
|
Глубина, мм
|
631 |
|
Ширина, мм
|
1024 |
|
Диаметр дымохода, мм
|
250 |
|
Вес, кг
|
290 |
|
Вид топки (способ открывания)
|
подъемный механизм |
|
Мощность, кВт
|
11 |
|
Отапливаемый объем
|
до 300 м3 |
|
Тип и форма стекла
|
прямое |
Отправляем продукцию по всей территории РФ.
Ознакомиться с условиями оплаты и получения товара Вы можете на странице «Доставка и оплата».
* Рассчитывается ориентировочная стоимость доставки от ПВЗ города отправления до ПВЗ города получения.
Конечная стоимость определяется после приема груза на терминале компании и зависит от точных габаритов сборки (длина*ширина*высота, вес), типа груза (наименование товара во вложении), вида отгрузки (отгрузка курьеру или в ПВЗ), хрупкости вложения, выбора услуги страхования груза, наличия обязательной обрешетки и дополнительной упаковки, согласно условий и требований к перевозке грузов конкретной ТК.
Вы можете воспользоваться услугами монтажа купленных у нас товаров. Для этого при оформлении заказа на сайте в поле «Нужен монтаж» нужно выбрать пункт «Да».
Также по вопросам монтажа Вы можете проконсультироваться по указанным на сайте телефонам или отправить запрос через любую из расположенных на сайте форм обратной связи.
- Можно доверять! Компания «КПД» работает с 2004 года.
- Работаем только с проверенными бригадами монтажников.
- Произведем расчет и установку любого оборудования из наших магазинов.
- Гарантируем качество выполненных работ.
- Примеры наших работ (смотреть).






