Не нашли нужный товар? Позвоните или напишите нам и мы обязательно подберем для Вас решение.
Договор заключается в момент оплаты Покупателем товара ТОЛЬКО в ОФЛАЙН-МАГАЗИНЕ. Делая предварительный заказ, Покупатель заверяет, что ознакомился и согласен с Политикой компании, она ему ясна и понятна.Облицовка Madeira Aster Giallo угловая балка мрамор
Описание
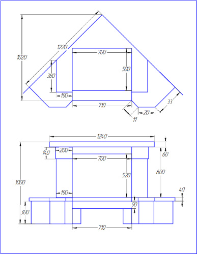
Madeira: каминные облицовки только из натурального камня - мрамора и песчаника, изготовленные на итальянском оборудовании Каминные облицовки Madeira представлены широким модельным рядом и большим разнообразием оттенков. Стандартные модели изготавливаются под топки шириной 700 мм. Также под топки 800 мм
Материалы
Материал: натуральный мрамор. Возможно и пристенное и угловой исполнения.
Установка
Для установки камина и подключения топки необходим дымоход. Его можно подобрать ЗДЕСЬ или позвонить нам для точного расчета.
В качестве огнезащиты стен и устройства конвекционного короба рекомендуем использовать силикат кальция.
Также могут понадобиться важные мелочи.
|
Производитель
|
Madeira (Россия) |
|
Высота, мм
|
1000 |
|
Глубина, мм
|
1220 |
|
Ширина, мм
|
1220 |
Отправляем продукцию по всей территории РФ.
Ознакомиться с условиями оплаты и получения товара Вы можете на странице «Доставка и оплата».
* Рассчитывается ориентировочная стоимость доставки от ПВЗ города отправления до ПВЗ города получения.
Конечная стоимость определяется после приема груза на терминале компании и зависит от точных габаритов сборки (длина*ширина*высота, вес), типа груза (наименование товара во вложении), вида отгрузки (отгрузка курьеру или в ПВЗ), хрупкости вложения, выбора услуги страхования груза, наличия обязательной обрешетки и дополнительной упаковки, согласно условий и требований к перевозке грузов конкретной ТК.
Вы можете воспользоваться услугами монтажа купленных у нас товаров. Для этого при оформлении заказа на сайте в поле «Нужен монтаж» нужно выбрать пункт «Да».
Также по вопросам монтажа Вы можете проконсультироваться по указанным на сайте телефонам или отправить запрос через любую из расположенных на сайте форм обратной связи.
- Можно доверять! Компания «КПД» работает с 2004 года.
- Работаем только с проверенными бригадами монтажников.
- Произведем расчет и установку любого оборудования из наших магазинов.
- Гарантируем качество выполненных работ.
- Примеры наших работ (смотреть).



